*** SHOW AND VIEW HOME OPEN EACH FRIDAY TO MONDAY ***
#INCENTIVES AVAILABLE ON SELECTED PLOTS.
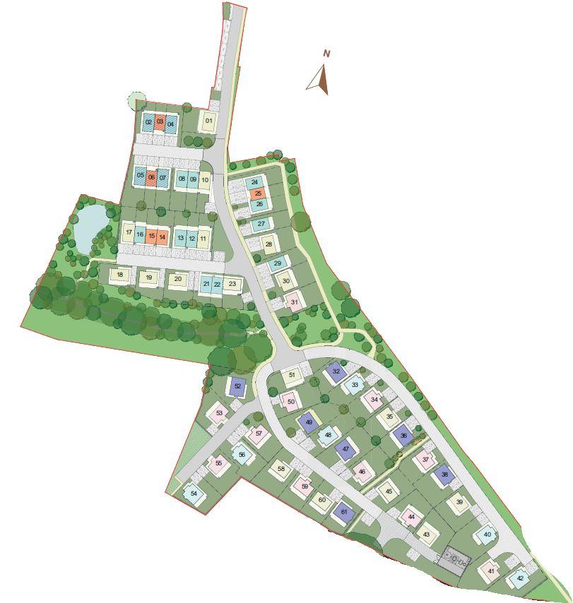
INTRODUCING THE WELLBECK – A lovely plot overlooking the Canal.
View our stunning Show and View Homes
Welcome to Stones Wharf – a unique development of 2, 3 and 4 bedroomed homes, nestled alongside the Shropshire Union (Llangollen) canal – this former sawmill is reputable local developer Shrewsbury Homes exciting new project creating 61 contemporary homes.
The Wellbeck is an excellent contemporary home, perfect for a growing family and occupying an enviable position with gardens backing onto the Canal. This impressive double fronted home features Reception Hall with Cloakroom, lovely through Lounge, attractively fitted family Living/Dining/Kitchen with French doors to the garden, Utility Room, Principal Bedroom with en suite, 2 further Bedrooms and family Bathroom.
The property has the benefit of high energy insulation, gas central heating, driveway with parking and enclosed rear garden.
Early reservation highly recommended. – STUNNING DOUBLE FRONTED 3 BEDROOM DETACHED HOME
– ENVIABLE LOCATION ALONGSIDE THE CANAL
– HIGH ENERGY EFFICIENCY AND GAS CENTRAL HEATING
– RECEPTION HALL WITH CLOAKROOM
– LOVELY THROUGH LOUNGE WITH FRENCH DOORS
– FABULOUS LIVING/DINING/KITCHEN WITH FRENCH DOORS
– PRINCIPAL BEDROOM WITH EN SUITE
– 2 FURTHER BEDROOMS AND FAMILY BATHROOM
– EARLY RESERVATION HIGHLY RECOMMENDED
LOCATION – Weston Rhyn is a self sufficient village and plays host to a primary school, two churches, public houses/restaurant, active village hall, takeaways and a short stroll from an M&S food store and Lion Quays Health Spa.
Stones Wharf backs onto the famous independent Moreton Hall school who’s fields provide a lovely backdrop.
The nearby busy market Town of Oswestry boasts an excellent of amenities including major supermarkets, high street stores, banks, charming range of independent stores, numerous restaurants/public houses, cafe’s, doctors and schools including Oswestry independent school and the Golf course.
For commuters to major Towns and Cities Weston Rhyn is conveniently placed between two Railway stations, Gobowen and Chirk which has links to Shrewsbury, Chester and London. The County Town of Shrewsbury is 22 miles away and the City of Chester 23 each access from the nearby A5 trunk road.
RECEPTION HALL – A generous Reception Hall with radiator.
CLOARKOOM – With WC and wash hand basin. Radiator.
IMPRESSIVE THROUGH LOUNGE – A lovely through room having window to the front and double opening French doors leading onto the rear garden, perfect for those who love to entertain outdoors. Media point, radiator.
LOVELY LIVING/DINING/KITCHEN – A lovely room, naturally well lit with windows to the front and side and double opening French doors leading onto the garden. The Kitchen will be fitted with an attractive range of contemporary units (with choice, subject to build stage).
UTILITY ROOM – with continuation of units to complement the Kitchen. Radiator and useful under stairs storage.
FIRST FLOOR LANDING – From the Reception Hall staircase leads to First Floor Landing off which lead
PRINCIPAL BEDROOM – An excellent room with window to the front, radiator, media point and fitted wardrobes.
EN SUITE SHOWER ROOM – with suite comprising shower cubicle with direct mixer shower unit, wash hand basin and WC. Complementary tiled surrounds from the stunning Porcelenosa range, heated towel rail, window to the rear.
BEDROOM 2 – having window to the front, radiator.
BEDROOM 3 – With window to the rear, radiator.
FAMILY BATHROOM – With suite comprising panelled bath, wash hand basin and WC. Complementary tiling from the stunning Porcelenosa range, heated towel rail.
OUTSIDE – To the front is a block paved driveway with parking and enclosed rear garden.
GENERAL INFORMATION – TENURE
We are advised the property is Freehold and would recommend this is verified during pre-contract enquiries.
SERVICES
We are advised that al main services are connected.
COUNCIL TAX BANDING
As this is a new build property the Council has not yet set the banding.
FINANCIAL SERVICES
We are delighted to work in conjunction with the highly reputable `Ellis-Ridings Mortgage Solutions’ who offer FREE independent advice and have access to the whole market place of Lenders. We can arrange for a no obligation quote or please visit our website Monks.co.uk where you will find the mortgage calculator. https://monks.co.uk/buy/mortgage-calculator/
LEGAL SERVICES
Again we work in conjunction with many of the Counties finest Solicitors and Conveyancers. Please contact us for further details and competitive quotations.
REMOVALS
We are proud to recommend Daniel and his team at Homemaster Removals. Please contact us for further details.
NEED TO CONTACT US
We are available 8.00am to 8.00pm Monday to Friday, 9.00 am to 4.00pm on a Saturday and 11.00am to 2.00pm on Sunday, maximising every opportunity to find your new home.
Always here when
you need us.
Contact us.
We are available:
Monday to Friday - 8.00am to 8.00pm
Saturday - 9.00am to 4.00pm
Sunday - 11.00am to 2.00pm
Found the right
property? Need help?
Get the best advice
on the market.
We’ve partnered with independent mortgage broker Ellis-Ridings Mortgage Solutions to give you the best personal and professional advice.
Similar properties
Always wanted to build
your dream home?
Why not buy off-plan.
If you like the idea of working with the developer and creating something unique for you then your journey begins with completing this form: