*** EXCEPTIONAL PENTHOUSE WITH LARGE BALCONY AND TOWN VIEWS ***
This truly impressive Penthouse offers unrivalled space, luxury and sophistication and is finished to an exceptional standard of specification by award winning local developers SY Homes.
Old Coleham Court is a unique contemporary development comprising of 43 Apartments and Penthouses located right on the edge of the Town Centre and being a stones throw from the vibrant Coleham. Boasting an excellent range of amenities including independent stores, cafe’s, bars and restaurants and a short walk from the famous Shrewsbury Quarry and Town Centre amenities.
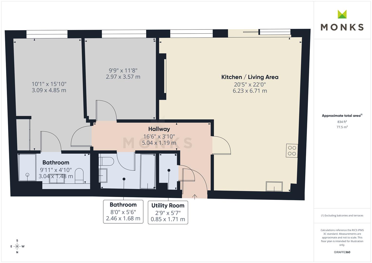
The accommodation which truly must be viewed to be fully appreciated, briefly comprises secure communal Entrance Hall which is opulently finished and has lift and stair access. Personal Reception Hall, fabulous open plan Living/Dining/Kitchen which is naturally well lit with full height glazing and large glide and slide doors opening onto the Balcony with South facing views across Coleham. The Kitchen is fitted with a comprehensive range of units with solid worksurfaces and high end appliances. Large Principal Bedroom with en suite Shower Room and further double Bedroom and Bathroom.
Impressive private residents courtyard garden.
Viewing essential. Please contact judy@monks.co.uk – IMPRESSIVE LARGE ACCOMMODATION AND PRIVATE TERRACE
– STYLISH OPEN AIR RESIDENTS CENTRAL COURTYARD
– LIFT ACCESS TO ALL FLOORS – STEP FREE ENTRANCE
– STUNNING FITTED KITCHEN WITH DINING AREA
– BEAUTIFULLY FITTED BATHROOM AND SHOWER ROOM
– 2 GOOD SIZED DOUBLE BEDROOMS
– ABOVE GROUND ANPR PRIVATE PARKING WITH AMPLE EV CHARGING
– CLOSE TO THE TOWN CENTRE, RAILWAY STATION AND RIVERSIDE WALKS
– VIEWING ESSENTIAL
LOCATION – There is a lot to love about living in Coleham – Coleham has a village like atmosphere, a vibrant high street and welcoming local community. Along Longden Coleham you will find independent shops, cafes, restaurant/public houses, hairdressers and recreational facilities.
Old Coleham Court is situated close to the Abbey and The English Bridge which is then a short stroll to the Wyle Cop which hosts the longest street of independent stores in the UK. For commuters there is ease of access to the A5/M54 motorway network.
DESCRIPTION – Envisage, engineer, emerge has been the Mantra at SY Homes as they have brought their vision for new residential apartments in Coleham, Shrewsbury to reality. After significant investment in architectural and engineering expertise, the state of art building is now complete and ready for occupation.
The Penthouses offer luxurious interior design, spacious open plan living and a private terrace to ensure they are the envy of Shrewsbury. Perfect views are captured within floor to ceiling windows and glass balustrades.
The Courtyard – At the heart of Old Coleham Court lies the residents courtyard, a peaceful and stylish open air sanctuary. Located on floor 1, the courtyard provides all important outside space where the residents can meet and relax. Finished with bench seating and ancient olive trees in a warm Mediterranean design. In the evening subtle lighting creates private zoned areas. The courtyard measures over 360 sqm and has two step free entrances.
An acoustic engineer consulted on Old Coleham Court as part of the architectural process. Sound absorption has been considered throughout the building with deep insulation in the walls.
Bespoke Scandinavian windows from Rational improve the sound and heat insulation.
Parking is available and is an automatic number plate recognition system and there are 22 electric vehicle charging bays.
SECURE COMMUNAL ENTRANCE HALL – A true wow factor for all your visitors, this light open space has a feel of opulence with its beautiful tiled flooring and feature wall panels. Stairs and lift access leads to the 3rd floor Penthouse Apartments. Security has been well and truly thought about and internal doors are access with a security fob.
PERSONAL RECEPTION HALL – with large cloaks/Utility store with washing machine.
IMPRESSIVE OPEN PLAN LIVING/DINING/KITCHEN – A fabulous light room with full height windows and glide and slide doors leading onto the terrace with views over the Town. The Kitchen is beautifully fitted with a range of contemporary high end units and appliances. Feature media wall with TV and living flame fire.
PRINCIPAL BEDROOM – A generous double room with full height windows.
EN SUITE BATHROOM – fitted with luxury suite and complementary tiling.
GUEST BEDROOM – Another generous double room with full height window.
SHOWER ROOM – fitted with luxury suite and complementary tiling.
TERRACE – with views over the Town.
GENERAL INFORMATION – TENURE
We are advised the property is Leasehold with a share of the freehold and subject to a 999 year lease, with 999 remaining. The monthly service charge will be capped for 3 years from completion. We would recommend this is verified during pre-contract enquiries.
SERVICES
We are advised that all main services are connected.
COUNCIL TAX BANDING
As taken from the Gov.uk website we are advised the property is in Band – again we would recommend this is verified during pre-contract enquiries.
FINANCIAL SERVICES
We are delighted to work in conjunction with the highly reputable `Ellis-Ridings Mortgage Solutions’ who offer FREE independent advice and have access to the whole market place of Lenders. We can arrange for a no obligation quote or please visit our website Monks.co.uk where you will find the mortgage calculator. https://monks.co.uk/buy/mortgage-calculator/
LEGAL SERVICES
Again we work in conjunction with many of the Counties finest Solicitors and Conveyancers. Please contact us for further details and competitive quotations.
REMOVALS
We are proud to recommend Daniel and his team at Homemaster Removals. Please contact us for further details.
NEED TO CONTACT US
We are available 8.00am to 8.00pm Monday to Friday, 9.00 am to 4.00pm on a Saturday and 11.00am to 2.00pm on Sunday, maximising every opportunity to find your new home
Always here when
you need us.
Contact us.
We are available:
Monday to Friday - 8.00am to 8.00pm
Saturday - 9.00am to 4.00pm
Sunday - 11.00am to 2.00pm
Found the right
property? Need help?
Get the best advice
on the market.
We’ve partnered with independent mortgage broker Ellis-Ridings Mortgage Solutions to give you the best personal and professional advice.
Similar properties
Always wanted to build
your dream home?
Why not buy off-plan.
If you like the idea of working with the developer and creating something unique for you then your journey begins with completing this form: