*** 1 BEDROOM DUPLEX TOWN CENTRE APARTMENT ***
An opportunity for first time buyer, investor or those looking for a lock up and go – this deceptively spacious one bedroom duplex style apartment is offered for sale with no upward chain.
Tucked away in Castle Court, in the heart of the Town Centre, a stones throw from all of the Town amenities and a short stroll from the Railway Station.
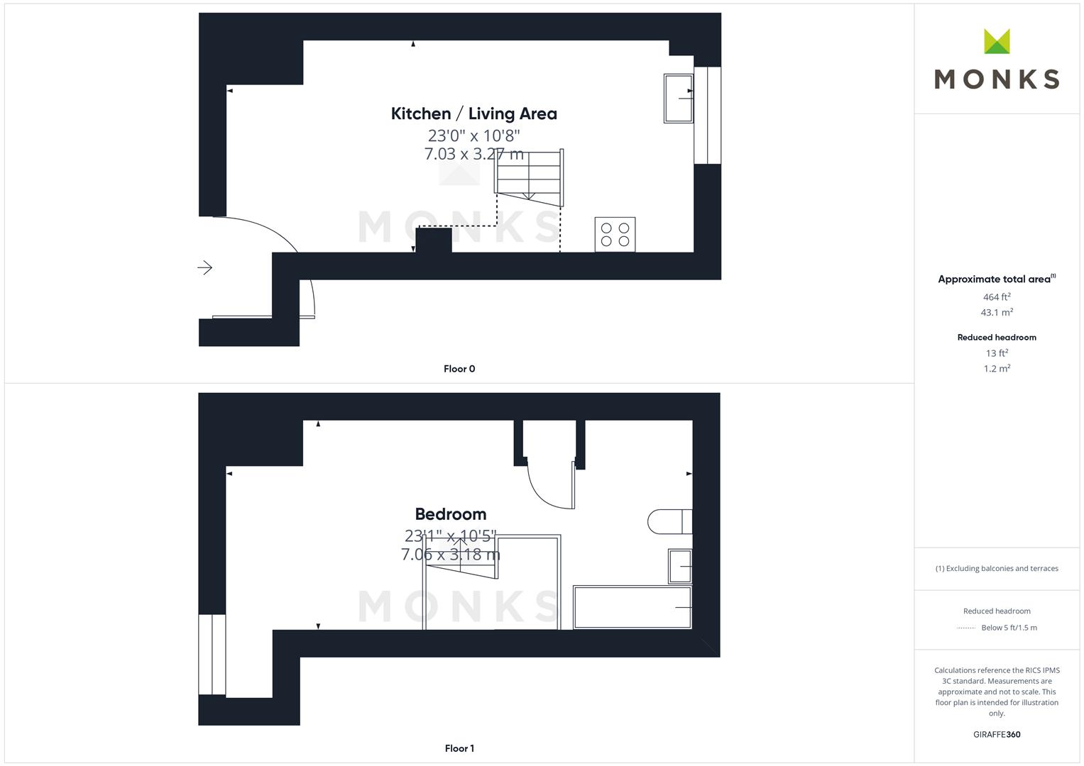
The accommodation briefly comprises spacious and light open plan Living/Dining/Kitchen, first floor galleried style Bedroom and Bathroom.
Offered for sale with no upward chain. – UNIQUE ONE BEDROOM DUPLEX STYLE APARTMENT
– COURTYARD LOCATION IN HEART OF THE TOWN CENTRE
– PERFECT FOR FIRST TIME BUYER OR INVESTOR
– OFFERED FOR SALE WITH NO UPWARD CHAIN
– OPEN PLAN LIVING/DINING/KITCHEN
– BEDROOM WITH BATHROOM
– SHORT STROLL FROM THE RAILWAY STATION
– EPC RATING E
LOCATION – Tucked away in Castle Court, in the heart of the Town Centre, a stones throw from all of the Town amenities and a short stroll from the Railway Station.
OPEN PLAN LIVING/DINING/KITCHEN – A spacious dual aspect room with the Lounge/Dining area having fully glazed door to the front, media point, wooden floor covering.
The Kitchen is fitted with range of units incorporating single drainer sink set into base cupboard, further range of cupboards and drawers with work surfaces over and having space beneath for appliances. Inset 4 ring hob with extractor hood over and oven and grill beneath, tiled surrounds and eye level wall units, window to the side.
BEDROOM 1 – having feature half moon style window to the front, range of fitted shelving/wardrobe space, wooden floor covering.
BATHROOM – with suite comprising panelled bath with shower unit over, wash hand basin and WC. Tiled surrounds, window to the rear.
GENERAL INFORMATION – TENURE
The property comprises of one of seven apartments and we are advised it will be sold as Freehold, owning 1/7th of the lease. Ground Rent and Service Charge to be confirmed though expected to be nominal due to there being no external/communal areas. We would recommend this is verified during pre-contract enquiries.
SERVICES
We are advised that mains water, electricity and drainage are connected.
COUNCIL TAX BANDING
As taken from the Gov.uk website we are advised the property is in Band C – again we would recommend this is verified during pre-contract enquiries.
FINANCIAL SERVICES
We are delighted to work in conjunction with the highly reputable `Ellis-Ridings Mortgage Solutions’ who offer FREE independent advice and have access to the whole market place of Lenders. We can arrange for a no obligation quote or please visit our website Monks.co.uk where you will find the mortgage calculator. https://monks.co.uk/buy/mortgage-calculator/
LEGAL SERVICES
Again we work in conjunction with many of the Counties finest Solicitors and Conveyancers. Please contact us for further details and competitive quotations.
REMOVALS
We are proud to recommend Daniel and his team at Homemaster Removals. Please contact us for further details.
NEED TO CONTACT US
We are available 8.00am to 8.00pm Monday to Friday, 9.00 am to 4.00pm on a Saturday and 11.00am to 2.00pm on Sunday, maximising every opportunity to find your new home
Important Notice – Monks for themselves and for the vendors of this property, whose agents they are give notice that:
These particulars provide a general outline only for the guidance of intended purchasers and do not constitute part of an offer or contract.
All descriptions, dimensions and distances are approximate, references to state and condition, relevant permissions for use and occupation and other details are provided in good faith and believed to be correct.
No person in the employment of Monks has any authority to make or give any representation or warranty whatever in relation to this property.
Electrical and other appliances mentioned in these particulars have not been tested by Monks. Therefore prospective purchasers must satisfy themselves as to their working order.
Always here when
you need us.
Contact us.
We are available:
Monday to Friday - 8.00am to 8.00pm
Saturday - 9.00am to 4.00pm
Sunday - 11.00am to 2.00pm
Found the right
property? Need help?
Get the best advice
on the market.
We’ve partnered with independent mortgage broker Ellis-Ridings Mortgage Solutions to give you the best personal and professional advice.
Similar properties
Always wanted to build
your dream home?
Why not buy off-plan.
If you like the idea of working with the developer and creating something unique for you then your journey begins with completing this form: