*** IMMACULATE 3 BEDROOM SEMI DETACHED ***
An excellent opportunity to purchase this immaculately presented, spacious and improved 3 bedroom semi detached house – perfect for a growing family. No upward chain.
Occupying an enviable position on this much sought after development which has good local amenities including shops, schools, doctors, regular bus service to the Town Centre and riverside walks. For commuters there is ease of access to the A5/M54 motorway network.
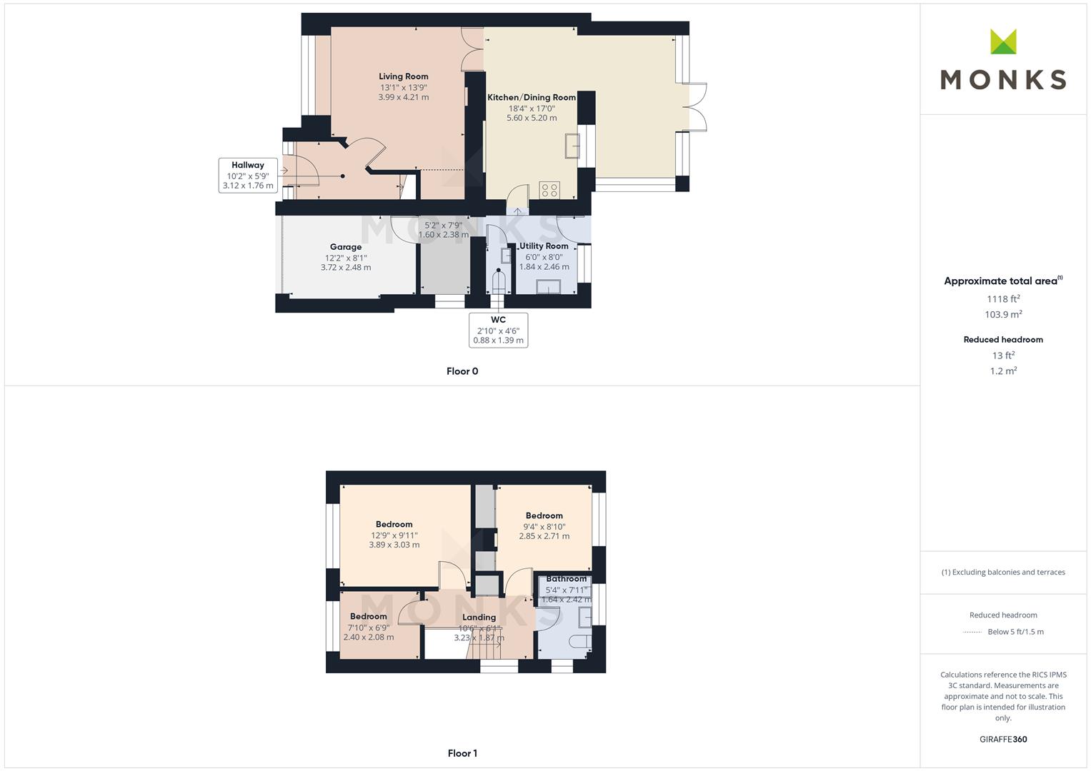
The accommodation briefly comprises Reception Hall, Lounge, Kitchen/Dining Room, Garden Room, Utility Room, Cloakroom, Home Office/Hobbies area, 3 Bedrooms and Bathroom.
The property has the benefit of gas central heating, double glazing, driveway with parking, workshop/store and lovely gardens to the front and rear.
Viewing highly recommended, no upward chain. – IMPROVED AND EXTENDED 3 BEDROOM SEMI DETACHED
– ENVIABLE LOCATION CLOSE TO AMENITIES
– RECEPTION HALL, LOUNGE, GARDEN ROOM
– KITCHEN/DINING ROOM, UTILITY, CLOAKROOM AND HOME OFFICE AREA
– 3 BEDROOMS AND BATHROOM
– GAS CENTRAL HEATING AND DOUBLE GLAZING
– GARAGE/STORE, DRIVEWAY WITH PARKING
– LOVELY ENCLOSED REAR GARDEN.
– VIEWING ESSENTIAL. NO UPWARD CHAIN
– EPC RATING C
LOCATION – Occupying an enviable position on this much sought after development which has good local amenities including shops, schools, doctors, regular bus service to the Town Centre and riverside walks. For commuters there is ease of access to the A5/M54 motorway network.
RECEPTION HALL – Sealed unit double glazed entrance door opening to Reception Hall, wooden effect flooring, radiator.
LOUNGE – A good sized room with window overlooking the front. Wooden lintel with space beneath for ornamental fire, media point, wooden floor covering, radiator. Double opening wooden and glazed doors to
KITCHEN/DINING ROOM – Dining area with ample space for table, radiator and continuation of wooden flooring. Peninsular divide to the Kitchen which is fitted with range of cream fronted shaker style units incorporating one and half bowl sink with mixer taps set into base cupboard. Further range of cupboards and drawers with work surfaces over with cutlery and pan drawers beneath. Inset 4 ring hob with extractor hood over and oven and grill beneath, tiled surrounds and eye level wall units. Window to the rear, tiled flooring and door to Utility.
GARDEN ROOM – being of brick and sealed unit double glazed construction with solid roof providing all year round use. Wooden floor covering, radiator and double French doors leading to the garden.
UTILITY ROOM – having single drainer sink set into base cupboard with work surface extending to the side with space for appliances beneath, tiled surrounds and eye level wall units., wooden effect floor covering, radiator. Door to the garden.
CLOAKROOM – with suite comprising WC and wash hand basin, radiator and window to the rear.
HOME OFFICE/STUDY AREA – with window to the side and personal door to Workshop/Store. This formed part of the original Garage and could easily be re instated if required.
FIRST FLOOR LANDING – From the Reception Hall staircase leads to First Floor Landing with access to roof space. Window to the side.
BEDROOM 1 – with window overlooking the front, wooden effect floor covering, radiator.
BEDROOM 2 – with window overlooking the rear garden, range of built in wardrobes, radiator.
BEDROOM 3 – with window to the front, radiator.
BATHROOM – with suite comprising panelled bath with shower unit over, wash hand basin and WC. Complementary tiled surrounds, radiator, windows to the side and rear.
OUTSIDE – The property is approached over driveway with parking for several cars and leading to the Garage/Workshop. The Front Garden is laid to lawn with flower and shrub beds. The Rear Garden has shaped lawn with well stocked flower, shrub and herbaceous beds and inset specimen tree, attractive paved sun terrace, enclosed with wooden fencing.
GENERAL INFORMATION – TENURE
We are advised the property is Freehold. We would recommend this is verified during pre-contract enquiries.
SERVICES
We are advised that all main services are connected.
COUNCIL TAX BANDING
As taken from the Gov.uk website we are advised the property is in Band C – again we would recommend this is verified during pre-contract enquiries.
FINANCIAL SERVICES
We are delighted to work in conjunction with the highly reputable `Ellis-Ridings Mortgage Solutions’ who offer FREE independent advice and have access to the whole market place of Lenders. We can arrange for a no obligation quote or please visit our website Monks.co.uk where you will find the mortgage calculator. https://monks.co.uk/buy/mortgage-calculator/
LEGAL SERVICES
Again we work in conjunction with many of the Counties finest Solicitors and Conveyancers. Please contact us for further details and competitive quotations.
REMOVALS
We are proud to recommend Daniel and his team at Homemaster Removals. Please contact us for further details.
NEED TO CONTACT US
We are available 8.00am to 8.00pm Monday to Friday, 9.00 am to 4.00pm on a Saturday and 11.00am to 2.00pm on Sunday, maximising every opportunity to find your new home
Important Notice – Monks for themselves and for the vendors of this property, whose agents they are give notice that:
These particulars provide a general outline only for the guidance of intended purchasers and do not constitute part of an offer or contract.
All descriptions, dimensions and distances are approximate, references to state and condition, relevant permissions for use and occupation and other details are provided in good faith and believed to be correct.
No person in the employment of Monks has any authority to make or give any representation or warranty whatever in relation to this property.
Electrical and other appliances mentioned in these particulars have not been tested by Monks. Therefore prospective purchasers must satisfy themselves as to their working order.
Always here when
you need us.
Contact us.
We are available:
Monday to Friday - 8.00am to 8.00pm
Saturday - 9.00am to 4.00pm
Sunday - 11.00am to 2.00pm
Found the right
property? Need help?
Get the best advice
on the market.
We’ve partnered with independent mortgage broker Ellis-Ridings Mortgage Solutions to give you the best personal and professional advice.
Similar properties
Always wanted to build
your dream home?
Why not buy off-plan.
If you like the idea of working with the developer and creating something unique for you then your journey begins with completing this form: